--   |  设为首页

帮忙装修网

中山

[切换]

中山二居室现代风格装修,玄关和客餐厅在一起

来自:中山帮忙装修网 日期:2022-06-06 15:29:16 205876 次 分享到:
导读:
68m²两室一厅的户型很方便一家三口日常居住和使用。中山帮忙装修网公司分享。

建筑面积68平米的北欧风小户型二居室案例,设计师在简约舒适的基调上, 加入了清新、文艺的北欧风软装和家具,营造出一个轻松、自然的居住空间。两室一厅的户型也方便一家三口日常居住和使用。

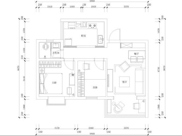
20220606_112451_000.jpg

平面布置图

20220606_112451_001.jpg

入户没有玄关走廊的户型,在入户门的一侧做了到顶的鞋柜。客厅的电视背景墙上做了文化砖的造型,来留空一部分,显得更有设计感。

20220606_112451_002.jpg

迷你的餐桌椅摆放在沙发和鞋柜的中间,鞋柜底部也做了留空的设计,方便摆放日常更换的鞋子。墙面两个迷你的隔板,可以用来摆放装饰品。

20220606_112451_003.jpg

客餐厅的墙面都刷成了蓝色系的,搭配米色系的沙发和原木风的家居,整个客餐厅给人一种清新、自然的感觉。

20220606_112451_004.jpg

客厅外的小阳台被设计成了休闲区和健身房,在阳台的一侧摆放常用的健身器械,另一侧种上绿植和摆放休闲桌椅,非常惬意。

20220606_112451_005.jpg

通往两间卧室和卫生间、厨房的走廊过道,墙面留白搭配挂画作为装饰,地面铺设灰色系的哑光砖,让走廊看起来更为简洁轻松。

20220606_112451_006.jpg

厨房内部空间还比较充足,内侧做上一个L型的橱柜,橱柜的边上摆放洗衣机和小推车,橱柜和吊柜之间也被利用起来做了收纳。

20220606_112451_007.jpg

主卧室的面积不是很大,床头两侧都没有摆放床头柜,齐家小菜觉得后续可以用小推车、边几等代替床头柜,能节约一些空间。

20220606_112451_008.jpg

次卧是做了榻榻米床组合衣柜和书桌柜的设计,榻榻米床自带储物空间,衣柜和书桌柜结合起来也能满足孩子日常的使用和收纳需求。

20220606_112451_009.jpg

卫生间的空间就比较迷你了,设计师选择了用蹲厕来代替马桶,用浴帘把淋浴区和浴室柜分开,也能起到一些干湿分离的效果。

或拨打免费热线:13822775923

已成功招标53521